Санкт-Петербург и область
+7 (921) 202-42-37
Москва и область
+7 (911) 640-37-98

Проект дома из бруса

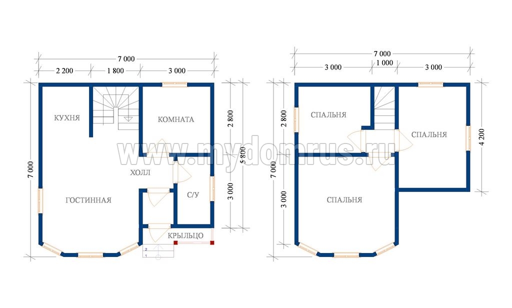
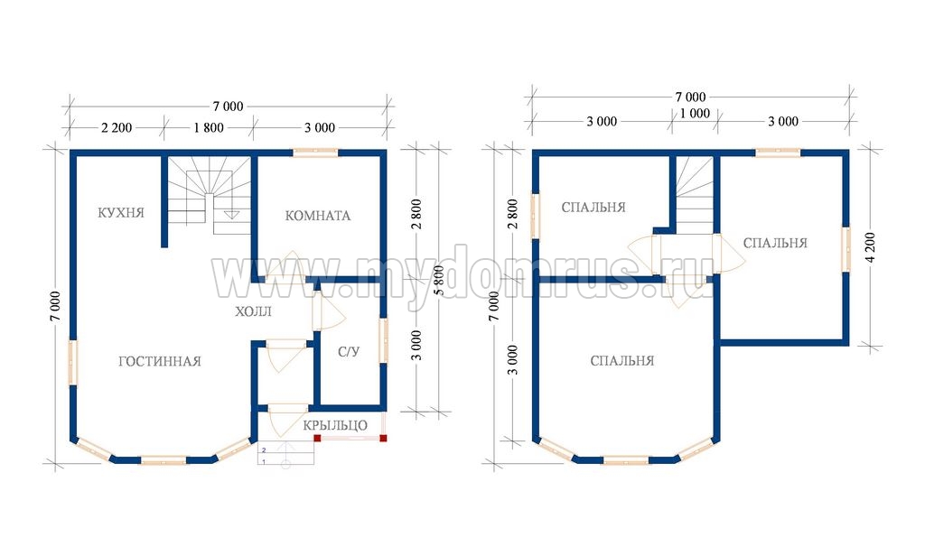
Проект Д-22
Дом из бруса
7х7 м.
Цена дома «под усадку»
Профилированный брус 150×100:
По запросу
Профилированный брус 150×150:
По запросу
Цена дома «под ключ»
Профилированный брус 150×100:
По запросу
Профилированный брус 150×150:
По запросу

Описание комплектаций

Обвязка: Нестроганный брус 150х150 мм, обвязка ложится в 1 ряд.


Сруб: Профилированный брус, сечением 90х140 мм (Брус естественной влажности).


Перегородки: перегородки брусовые, брус 90 х140 мм (брус перегородочный), брус естественной влажности.


Высота от пола до потолка в срубе: 2,4 м (+- 5 см), 18 рядов бруса.


Сруб собирается на металлические нагеля (Гвозди 200 мм).


Углы собираются в «Пол дерева».


Между венцами прокладывается льноджутовое полотно.


Половые лаги: Нестроганный брус 100х150 мм, шагом через каждые 700 мм.


Потолочные балки: Нестроганный брус 100х150 мм, шагом через каждые 700 мм.


Стропильная система: брусок 40х100 мм шагом через каждые 1000 мм.


Обрешетка: Обрезная доска второго сорта.


Крыша – согласно проекту дома (двускатная, ломанная, ассиметричная). Высота конька – 3,5 м.


Кровельный материал — Ондулин, цвет на выбор: красный, коричневый, зеленый, (по желанию «Клиента» любой другой кровельный материал).


Фронтоны: обшиваются вагонкой хвойных пород (камерной сушки).


Поднебесники и карнизы (свесы крыши): зашиваются вагонкой хвойных пород (камерной сушки). Ширина свеса: 350 – 450 мм ( минимум 4 вагонки).


Во фронтоны дома устанавливаются вентиляционные решетки (предотвращают образование конденсата).


Окна, двери: окна, двери не устанавливаются, остаются лишь не пропиленные проемы для равномерной усадки сруба.


Терраса: в том случае, если терраса проектом предусмотрена, то устанавливаются опорные столбы с компенсационными лифтами (домкратами) под усадку.


У входа в сруб устанавливаются ступени.

Обвязка: Нестроганный брус 100*150 или  150х150 мм, обвязка 1 ряд.


Сруб: Профилированный брус(овал или прямой на выбор) сечением 90х140 мм (140х140 мм 140*190 , брус естественной влажности.


Перегородки: 1 этаж:перегородки брусовые, брус 90 х140 мм (брус перегородочный прямой ), брус естественной влажности. 2 этаж:перегородки каркасные, каркас из бруска 40х100 мм, перегородки зашиваются с 2-х сторон вагонкой хвойных пород.


Высота от пола до потолка: 2,32-2.38 м (+- 5 см), 17 рядов бруса.


Сруб собирается на металлические нагеля (Гвозди 200 мм).


Углы собираются в «Пол дерева».


Между венцами прокладывается льноджутовое полотно.


Половые лаги: Нестроганный брус 100х150 мм, шагом через каждые 900 мм.


Пол двойной: черновой – обрезная доска 20 мм.: чистовой пол –шпунтованная половая доска 28 мм(камерной сушки).Пол утепляется минеральной ватой Изовер 50мм., прокладывается изоляция Нанаизол категории В.


Потолочные балки: Нестроганный брус 40х150 мм, шагом через каждые 500 мм.


Потолок первого этажа подшивается вагонкой, хвойных пород (камерной сушки). Потолок утепляется минеральной ватой Изовер  50мм., прокладывается изоляция Нанаизол категории В.


Стропильная система: брусок 40х150 мм шагом через каждые 1000 мм.


Обрешетка:обрезная доска, толщиной 20 мм.


Крыша – согласно проекту дома (двускатная, ломанная, ассиметричная). Высота конька – 3,0-3.2 м.


Кровельный материал — Ондулин, цвет на выбор: красный, коричневый, зеленый, под кровлю настилается гидроизоляция Нанаизол категории А .(по желанию «Клиента» любой другой кровельный материал расчет по проекту).


Двери: входная – металлическая Китай , межкомнатные – филенчатые (устанавливаются согласно проекту).


Окна: деревянные с двойным остеклением с фурнитурой  (устанавливаются согласно проекту


Мансардный этаж: мансарда – каркасная, обшивается вагонкой, хвойных пород (камерной сушки). Мансарда утепляется минеральной ватой Изовер 50 мм., пароизоляция «Нанаизол категории В». Пол на мансарде шпунтованная половая доска 28 мм (камерной сушки).


Высота от пола до потолка на мансардном этаже 2.2- 2,3м.


Фронтоны: обшиваются вагонкой хвойных пород(камерной сушки).


Поднебесники и карнизы (свесы крыши): зашиваются вагонкой хвойных пород (камерной сушки). Ширина свеса: 350 – 450 мм (ширина 4 вагонки).


Во фронтоны дома устанавливаются вентиляционные решетки (предотвращают образование конденсата).


Первый этаж и мансарду соединяет лестница (лестница согласно проекту: одномаршевая, двух маршевая, П-образная). Отделка лестницы, перила – резные, балясины – точеные, устанавливаются стартовые столбы. Ширина ступени лестницы от 220 мм.


Терраса: в том случае, если терраса проектом предусмотрена, то устанавливаются опорные столбы с компенсационными лифтами (домкратами) под усадку. Отделка террасы, перила — резные., балясины – точеные.


Все углы в доме, стыки заделываются плинтусом, оконные, дверные проем обналичиваются вагонкой.


Устанавливаются ступени у входа.

Свайно — винтовой фундамент (расчет количества по проекту)

3500 руб. / 1 свая

Ленточно армированный фундамент

Расчет по проекту

Сборка брусовых стен на деревянные нагеля

60 руб. / п.м.

Дополнительный венец из бруса — 150×100

7500 руб.

Дополнительный венец из бруса — 150×150

9500 руб.

Дополнительное окно деревянное с установкой 1.2*1.5

4800 руб.

Дополнительное окно деревянное с установкой 0.6*1.2

2500 руб.

Фронтоны из профилированного бруса — 150×100

250 руб. / п.м.

Фронтоны из профилированного бруса — 150×150

350 руб. / п.м.

Дополнительное окно с установкой деревянное с установкой 1.0*1.2

3500 руб.

Дополнительное окно с установкой 0.5*0.5

2000 руб.

Замена деревянного окна 1.2×1.0 на деревянный стеклопакет однокамерные с установкой

5000 руб.

Дополнительная филенчатая дверь

3000 руб.

Шиповка оконных и дверных проёмов (За 1 проём)

2500 руб.

Входная дверь метал (Россия)

10000 руб.

Кровля металлочерепица

450 кв.м.

Крыльцо 1.5*1.0

12000 руб.

Ломаная крыша

25000 руб.

Трех- фронтонная крыша

35000 руб.

Обработка основания , лаг , черновых полов ( огнебиозащитным антисептиком )

80000 руб.

Терасса 6.0*2.0

25000 руб.

Банные печи

Открыть раздел

Туалет каркасно — щитовой 1.2×1.0

8000 руб.

Бытовка для проживания бригады — 2.3×3.0

16000 руб.

Аренда генератора на весь срок строительства (бензин заказчика)

8000 руб.

Сухой профилированный брус (принудительной сушки)

+ 12% к стоимости

Половая доска 36мм. (принудительной сушки)

300 руб. / кв.м.

Задать вопрос или оставить заявку

CAPTCHA
Этот вопрос задается для того, чтобы выяснить, являетесь ли Вы человеком или представляете из себя автоматическую спам-рассылку.
НАШИ КОНТАКТЫ
Пестово, Новгородская область
Телефон: +7 (921) 202-42-37
Почта: mydomrus53@yandex.ru